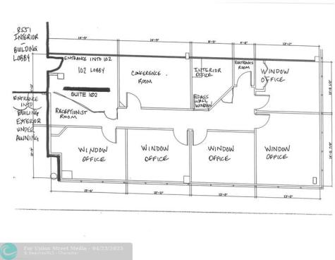
Property Details
Basic Information
- Property Type: Commercial/Industrial
- BeachesMLS: F10483622
- Virtual Tour: Virtual Tour
Building
- Zoning: B-7Q
- Stories: 3
Location
- Building Number: 8551
- Street: W Sunrise Boulevard
- Town: Plantation
- County: Broward County
- State: FL
- Zip: 33322
